Blue Circle Research Department

Blue Circle was by far the largest UK cement company thoughout the twentieth century, and its size allowed considerable investment in research. Outside Blue Circle, research investment was slight and patchy. The rapidly-expanding Rugby company set up a small central research and services facility in Rugby as late as 1971. The group of companies which became Castle relied in its early days on the research facilities of FLS. The plants associated with ICI obtained considerable support from their massive research facilities, at least in terms of chemistry. The many other small and single-plant companies had to rely on the support of their plant suppliers. However, at the start of the 20th century, all companies were in this situation.

Peter Jackson made the point that the need for research facilities became salient with the establishment of BPCM in 1912. The incipient Blue Circle now had a wide variety of plants, many provided with rotary kilns and ball mills in an ad hoc manner from multiple suppliers. There was an opportunity to apply a "best practice" approach to this motley collection - and certainly there was huge scope for a dramatic improvement in efficiency. The Joint APCM/BPCM Research Committee was set up in 1913. The work of the committee concentrated on kiln and mill optimisation. A program of in-depth snap-shot surveys of individual plant items was initiated which produced a large body of data that continued in use for many subsequent decades.

During the First World War, Government concern arose about the technical superiority of many aspects of German industry, and it was decided to encourage British industry sectors to set up shared R&D facilities on a "matched funding" basis. This scheme was launched in 1918, and the British Portland Cement Research Association (Note 1) was among the first to form, in November of that year. A paper in Nature (Note 2) by S. G. S. Panisset describes its formation. He says:

The aim of the association may be briefly summarised as an attempt to cheapen the production and to improve the quality of cement, and the achievement of this aim cannot fail to benefit the consumer while tending to stabilise the British industry. The hearty co-operation of British manufacturers in this enterprise is shown by the fact that more than 90% of their number are members of the association.

The Association took over the facilities and material of the A/BPCM Joint Research Committee wholesale, and, run almost exclusively by A/BPCM personnel, continued its activities fairly seamlessly. However, Blue Circle recognised from the outset that its internal needs extended beyond the BPCRA's remit, and used the Association's resources to establish Product and Engineering R&D departments in 1921 at Rosherville Court in Gravesend, while a central chemical laboratory was set up in a warehouse at Hollick's Wharf. The Government grant to BPCRA ceased in 1923, and in the increasingly difficult financial and political situation, no further industry finance was forthcoming, so the association was wound up in 1925, with a precis of its results to date hurriedly written up and published. The bulk of its raw data was buried in the National Archives or lost. The research facilities were acquired by A/BPCM at cost.

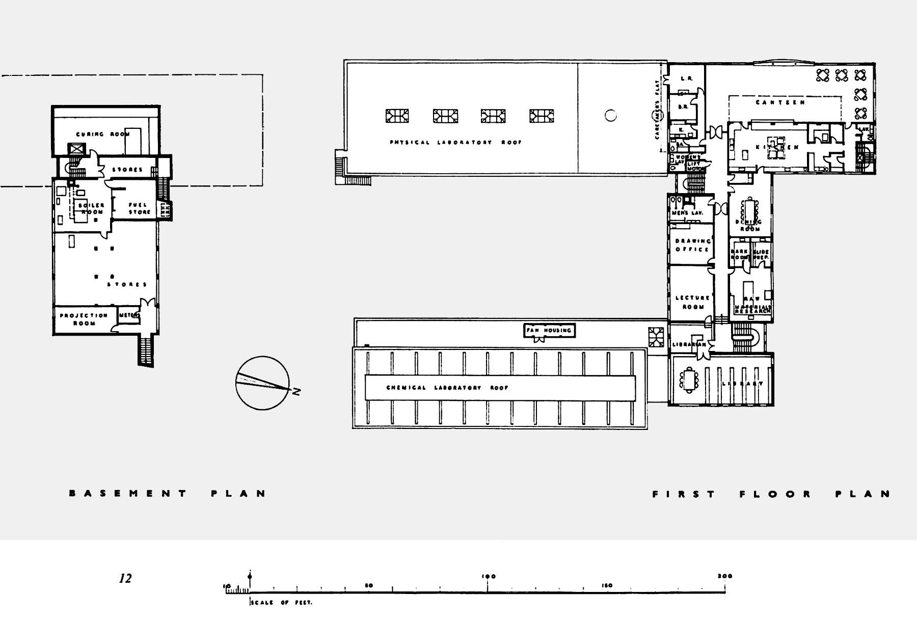
Blue Circle's R&D work continued to focus on consolidating knowledge of optimised manufacturing techniques, and on the development of special products such as rapid-hardening and white cements. After the hiatus of activity during WWII, the need for improved facilities became clear, and a new laboratory complex was built on the lands of Stone Castle, Greenhithe, long owned by Blue Circle. It was first occupied in early 1952, and was officially opened on 11 July 1952 by David Eccles, Minister of Works and Tory MP for Chippenham.

I recently (2022) got hold of a pamphlet produced for the opening of the Greenhithe buildings, now out of copyright, and here it is.

cover page

Research Department Location

page 1

page 2

page 3

page 4

page 5

page 6

page 7

page 8

page 9

page 10

page 11

page 12

page 13

page 14

page 15

page 16

page 17

page 18

page 19

page 20

page 21

The complex expanded considerably over the following 30 years, to about twice the floorspace. After 1973, the original functions of the department began to fade away like the Cheshire Cat, and by the time I was there in the 1990s, there was nothing left but the grin. Particularly appalling was the vast echoing vacuity of the Chemistry Labs, which had acquired the air of the Hall of the Bright Carvings - a sign of the decay of the status of chemistry in the industry. Although it was thickly surrounded by cement plants in 1952, by the time of the Lafarge takeover in 2001, the cement industry of southeast England was virtually extinct, so it had no longer a strategic location, and was of value only as development land. The buildings were demolished in 2004, and all sign of them is now gone. They were located at National Grid Reference TQ 5836 7433 (51°26'45"N, 0°16'39"E).

Ordnance Survey Map

Part of OS 1:2500 Plan TQ 5874 revised March 1952: base map courtesy of National Library of Scotland (modified). Shows the Stone Castle estate. To the east is the worked out Castle Pit of Johnsons Works.

This is a view of the SW wing, containing the physical and product development labs, in September 1987. Kindly contributed by Tom Burnham.

Greenhithe Labs picture

NOTES

Note 1. A detailed discussion of the history of the BPCRA is given as a separate page, as is a precis of its reported research work.

Note 2. Nature, 106, No. 2667, 9 Dec 1920, pp 475-476. See Panisset's biography.